?>
Ornella Sanz Moreno

VIVIENDA COLECTIVA CARRETERA CARMONA


Sevilla, EspañaAño 2012

La ordenación de este trozo de ciudad surge de la idea de abrir una calle peatonal al lado del muro de la parcela colindante, proporcionando mayor actividad a esa parte más deprimida. El edificio de viviendas se coloca sobre un basamento de locales comerciales y zonas comunes, lo que genera mayor atractivo para la nueva calle peatonal.

Se colocan una serie de huertos urbanos para que los residentes puedan cultivar, como se hacía antiguamente en esta zona situada a extramuros de la ciudad.

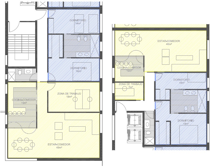
Todas las viviendas siguen un mismo esquema, pasillo distribuidor que da entrada y divide en dos zonas la vivienda, la zona de noche y la zona de día, y localizada al final del mismo una gran zona de estar. Existen viviendas de 2, 3 y 4 dormitorios. Poseen todas una zona de trabajo próxima a la entrada de la vivienda o a la zona de estar.

  • VIVIENDA COLECTIVA CARRETERA CARMONA
  • VIVIENDA COLECTIVA CARRETERA CARMONA
  • VIVIENDA COLECTIVA CARRETERA CARMONA
  • VIVIENDA COLECTIVA CARRETERA CARMONA
  • VIVIENDA COLECTIVA CARRETERA CARMONA
  • VIVIENDA COLECTIVA CARRETERA CARMONA
  • VIVIENDA COLECTIVA CARRETERA CARMONA
  • VIVIENDA COLECTIVA CARRETERA CARMONA
  • VIVIENDA COLECTIVA CARRETERA CARMONA
  • VIVIENDA COLECTIVA CARRETERA CARMONA
  • VIVIENDA COLECTIVA CARRETERA CARMONA
  • VIVIENDA COLECTIVA CARRETERA CARMONA
  • VIVIENDA COLECTIVA CARRETERA CARMONA
  • VIVIENDA COLECTIVA CARRETERA CARMONA
  • VIVIENDA COLECTIVA CARRETERA CARMONA
  • VIVIENDA COLECTIVA CARRETERA CARMONA
  • VIVIENDA COLECTIVA CARRETERA CARMONA
  • VIVIENDA COLECTIVA CARRETERA CARMONA
        

Comentarios de los usuarios:
  • No hay comentarios todavía para este proyecto.

Deja tu comentario


Refrescar
Sígueme en: facebook linkedin twitter
Cookie MonsterEsta web utiliza cookies. Si sigues navegando, entonces se entenderá que aceptas el uso de ellas en este sitio.CERRAR